-
必威电竞精装版app下载 机械·必威app官网下载安卓苹果
WANDA MACHINERY
一、产品简介
GLS概率筛适用于轻工、化工、制药、食品、粮食、矿产等行业粉状、颗粒状、块状物料的筛分作业,是一种能动地利用概率筛分原理的筛分机械,生产能力大、效率高,可以对机制砂或天然砂进行多级分级,筛选的目数:5MM~2.36MM~1.2MM~0.6MM,部分特殊砂浆已经筛分到0.3MM~0.15MM~0.075MM。国外将此种设备称为MOGENSEN(摩根森)筛,是筛选工艺中产量最大的一种筛分设备。
二、工作原理
概率筛与普通筛明显的差别是采用了概率筛分的原理,多层筛网(一般为3-6层)、大倾角(一般为15-30度)、大筛孔(筛孔尺寸为分离粒度的2-10倍),从而以很快的速度完成整个筛分过程,其单位面积筛网处理能力比普通筛大5-10倍。概率筛的振动源是由两台旋转方向相反的振动电机自同步产生的直线振动力,带动箱体做直线振动,物料在网面做抛掷运动向前移动。选择合理的振动幅度可以保证物料筛分精度高的同时保证产量最大化。
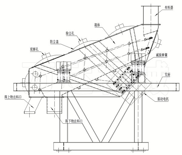
三、设备结构
四、激振力调节
振动电机激振力的大小影响着筛体的振动幅度的大小,以致影响到物料筛分精度和产量,不同物料所需的振幅情况也不相同,用户应根据实际使用情况选择最佳激振力。
调整激振力应按下列步骤:
Ⅰ、取下两侧的防护罩;Ⅱ松开外调整板螺栓,按同一方向拧动外调整板,外调整板上有显示激振力的刻度线,对准转子轴的刻度线,取得理想的激振力;Ⅲ、重新拧紧外调整板上螺栓;Ⅳ、装上两侧的防护罩。
注意:振动电机两端的调整板必须定在同一值,如不相等,会产生横向力,损坏电机及设备。
五、注意事项
1、筛机的安装基础必须经水平仪找平,四支点高度误差控制在3毫米以内,以保证筛机工作起来平稳,安装基础要有足够的强度和刚度来承受筛机运行时的综合载荷。
2、筛机吊装时吊扣挂在筛箱指定位置(一般弹簧座上预留吊装孔),以免吊绳勒坏其它部位;吊装过程要平稳,避免碰撞和坠落。
3、筛机支座与基础连接牢固(螺栓连接或焊接)。
4、开机前必须检查好筛机各部分安装是否正确齐全,进出料口是否与其它设备软连接连接,各部紧固螺栓是否紧固牢靠。
5、检查筛网是否有破损、平整、拉紧,筛网拉紧要均匀,如不均匀可调节拉网钩板上的螺栓,筛网不均匀拉紧将影响筛网的使用寿命,检查筛网两边的硅胶板,网拉紧后两侧的硅胶板与侧板自然贴紧,如不贴紧将影响筛分质量。
6、检查电机螺栓是否紧固,检查电机防护罩是否变形,检查电机偏心块是否旋转无卡阻。
7、电器箱各控制元件应动作灵活自如。
8、开机前参振部件上的物品清理干净,以免开机时飞物伤人。
9、点触开关,启动振动电机,使两台振动电机作相对旋转运动,观察参振部分有无异常现象。各方面装备工作完善无误后,方能进行试转运行。
10、筛子开机和关机时会有较大幅度的振动,这是筛机过共振区的共振现象,不影响使用。
11、接上电源线,其电压、熔断器和开关应相符无误;电源线接缺相保护器和断电保护器,设备接地线保护。
12、试转运行时间不小于8小时,通过视听触对筛子作进一步检查,筛子启动时应平稳迅速,工作振动应稳定可靠,并无特殊异声和噪音;检看布料器布料是否均匀(因物料特性不同,布料孔排布不同),如若布料不均匀,请改善布料孔排布。
13、启动平稳、迅速、无明显横向摆动。
14、连续运行8小时,检查轴承温度,温度不得超过85摄氏度。
15、试运行时检查电机电流是否超过额定值,三相电流和三相电压是否平衡。
16、运转8小时后应检查筛子所有紧固螺栓是否有松动现象,如有松动,应重新拧紧。
关于概率筛、旋振筛、直线筛、摇摆筛、平面回转筛、超声波振动筛、真空上料机、除尘器等更多详情,可随时详询必威电竞精装版app下载 机械专业人员!
- 齐心协力,再创佳绩-必威电竞精装版app下载 机械年会盛典圆满落幕...2024-02-07
- 新乡举办2023中原农谷首届振动机械产业博览会...2023-08-26
- 2022中国(新乡)振动筛分产业博览会圆满闭幕...2022-09-06
- 超声波振动筛与摇摆筛两位同学的对话采访...2022-07-02
- 回转筛与推拉筛到底一样不一样...2022-06-24
- 圆形摇摆筛安装调试注意事项...2022-06-22
- 摇摆筛受欢迎的原因是它的优势很突出...2022-06-20
- 摇摆筛为啥能在市场上取得良好的表现...2022-06-17
- 摇摆筛跟振动筛比有啥不一样的优势...2022-06-15









豫公网安备 41071102000230号